Partager sur
Rénovation d’un appartement aux couleurs printanières!
Publié par Boclaud Architecture le 31 janvier 2017
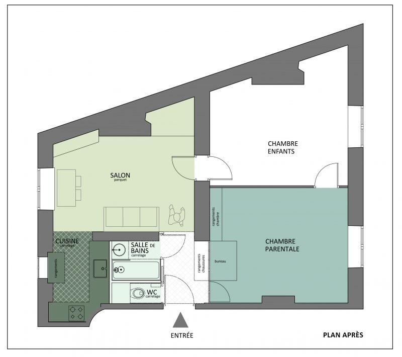
Auparavant, on entrait dans l’appartement directement par la cuisine, les propriétaires souhaitaient changer cette disposition, avoir plus d’intimité et gagner de la place.
Les pièces d’eau, la chambre parentale ainsi que le salon ont été redistribués afin d’avoir une vraie entrée, des rangements et une cuisine éclairée naturellement juste à coté du salon.
Le placard autrefois dans le chambre est maintenant dans le salon a été transformée en niche pour créer une banquette cosy et douillette!










Boclaud Architecture
11 passage des abbesses
75018 Paris

Boclaud Architecture
11 passage des abbesses 75018, Paris
M° Abbesses